Магазин.
Расположение
Адрес — г Саранск, ул Гагарина, д 14 Центр — р-он
Расположение:
Улица —
ГАГАРИНА ул.Объект № 18857
По вопросам обращайтесь
По вопросам обращайтесь

Александр Попков
89870112555
На карте
загрузка карты...





Описание
Продается помещение на первой линии, с арендаторами, все вопросы по телефону
Параметры
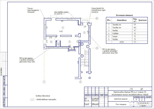
Материал стен — КирпичЭтаж — 1
Этажность — 2
Высота потолков — 2,7 м.
Ремонт — Хороший
Площадь
м2 —
72 общаяНаличие
Паркинг — Есть