12 000 000 руб.
Расположение
Адрес — г Саранск, ул А.Невского, д 55Б Военная база — р-он
Расположение:
Улица —
АЛЕКСАНДРА НЕВСКОГО ул.Объект № 21332
По вопросам обращайтесь
По вопросам обращайтесь
Кулыгин Алексей 89376788062





Описание
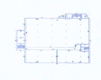
Продажа помещения на цокольном этаже.
Общая площадь - 300 кв.м.
Высота потолка 3 м.
Соседние арендаторы : Мебельные магазины , Зоомагазин, Пищевое производство.
По всем вопросам звонить по указанному номеру телефона.
Общая площадь - 300 кв.м.
Высота потолка 3 м.
Соседние арендаторы : Мебельные магазины , Зоомагазин, Пищевое производство.
По всем вопросам звонить по указанному номеру телефона.
Параметры
Материал стен — КирпичПлощадь
м2 —
300 общаяНаличие
Отопление — ЦентральноеХолодное водоснабжение — Есть
Горячее водоснабжение — Есть
Канализация — Есть
Электроснабжение — Есть
Газоснабжение — Есть
Паркинг — Есть
Охранная сигнализация — Есть
Пожарная сигнализация — Есть
Система пожаротушения — Есть
