500 руб.
Расположение
Адрес — г Саранск, ул Кирова, д 63 Парк им.А.С.Пушкина — р-он
Расположение:
Улица —
КИРОВА ул.Объект № 18028
По вопросам обращайтесь
По вопросам обращайтесь
На карте
загрузка карты...






Описание
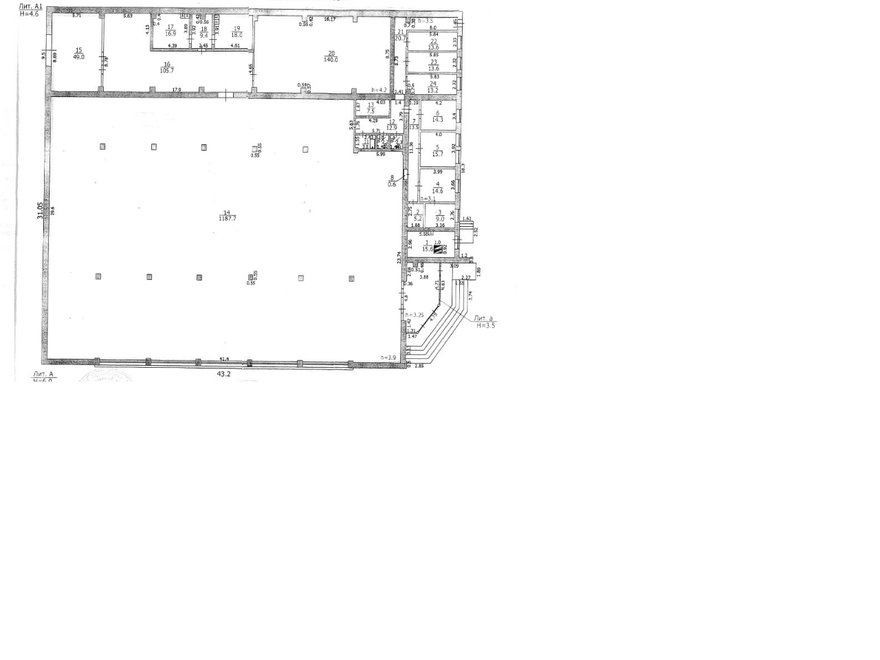
Сдается в аренду отдельно стоящее здание на Кировском рынке. Площадь 1700 кв.м. из них 1200 торговая. Подсобные помещения, Три входа, пандус, высокие потолки.
Параметры
Этажность — 1Ремонт — Хороший
Площадь
м2 —
1700 общаяНаличие
Телефон — ЕстьИнтернет — Есть
Отопление — Центральное
Холодное водоснабжение — Есть
Канализация — Есть
Электроснабжение — Есть
Паркинг — Есть
Охранная сигнализация — Есть
Пожарная сигнализация — Есть
Система пожаротушения — Есть
Видеонаблюдение — Есть
